Gmina Miasto Zgierz
Tryb: Przetarg nieograniczony Stan: Unieważnienie przetargu Wartość: do 5 548 000 euro
Rodzaj: Roboty budowlane
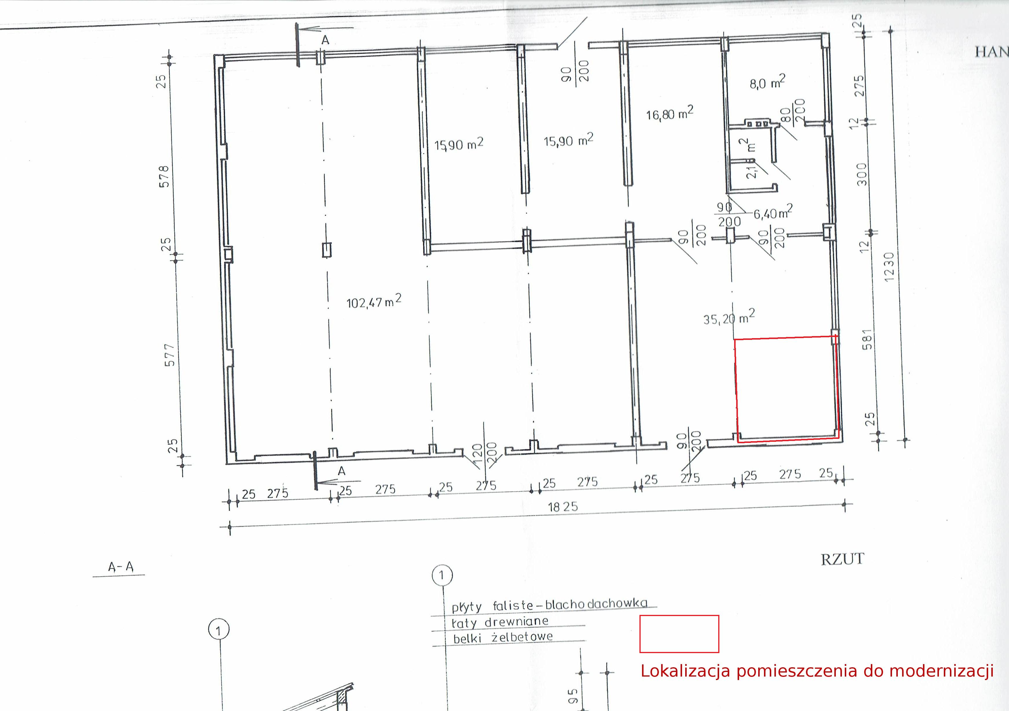
Przedmiot: Wykonanie kompleksowego remontu toalety publicznej, modernizacja budynku do przechowywania sprzętu (hangaru), zaprojektowanie i wykonanie: przyłącza wody i montażu poidełka, szczelnego zbiornika na ścieki, przyłącza wody i kanalizacji do pryszniców i footwasherów oraz przyłącza wody do wodnego placu zabaw objętych odrębnym postępowaniem na terenie Miejskiego Ośrodka Sportu i Rekreacji „Malinka” w Zgierzu, w ramach projektu „Szlakiem architektury włókienniczej – rewitalizacja Miasta Zgierza w celu rozwoju produktu turystycznego oraz rewitalizacji zdegradowanych terenów na obszarze ŁOM” współfinansowanego ze środków Unii Europejskiej z Europejskiego Funduszu Rozwoju Regionalnego w ramach Regionalnego Programu Operacyjnego Województwa Łódzkiego na lata 2014 - 2020
Data publikacji Termin składania ofert/wniosków: Termin otwarcia ofert:
2018-11-28 2018-12-13 12:45 2018-12-13 13:00
Typ dokumentuData publikacjiRozmiar
Ogłoszenie
dokument Ogłoszenie
2018-11-28 11:22 3864.86 KB 
SIWZ
dokument Specyfikacja istotnych warunków zamówienia
2018-11-28 11:22 940.12 KB 
dokument Opis przedmiotu zamówienia
2018-11-28 11:22 1113.99 KB 
dokument Załącznik nr 1
2018-11-28 11:22 2610.9 KB 
dokument Załącznik nr 2
2018-11-28 11:22 11408.46 KB 
dokument Załącznik nr 3
2018-11-28 11:22 307.41 KB 
dokument Załącznik nr 4
2018-11-28 11:22 100.05 KB 
dokument Załącznik nr 5
2018-11-28 11:22 389.68 KB 
dokument Załącznik nr 6
2018-11-28 11:22 1077.5 KB 
dokument Formularz oferty
2018-11-28 11:22 94 KB 
dokument Oświadczenie o grupie kapitałowej
2018-11-28 11:22 44 KB 
dokument Oświadczenie Wykonawcy o warunkach udziału
2018-11-28 11:22 58.5 KB 
dokument Oświadczenie Wykonawcy o wykluczeniu
2018-11-28 11:22 88.5 KB 
dokument Doświadczenie zawodowe
2018-11-28 11:22 39 KB 
dokument Potencjał wykonawczy
2018-11-28 11:22 47 KB 
dokument Oświadczenie Podwykonawcy
2018-11-28 11:22 58 KB 
dokument Ogólne warunki umowy
2018-11-28 11:22 2946.07 KB 
dokument Odpowiedź na wezwanie Zamawiającego
2018-11-28 11:22 43 KB 
dokument Klauzula informacyjna RODO
2018-11-28 11:22 55 KB 
Informacja o wyniku postępowania
dokument Informacja o unieważnieniu postępowania
2018-12-20 15:50 286.72 KB 



Jeśli chcesz otrzymywać informacje o zmianach w tym przetargu wprowadź swój adres e-mail:
Dodaj
Baza Zamówień Publicznych ver. 17.03.02. Copyright © EURON Sp. z o.o.